Enter city, zip, neighborhood, address…




Description
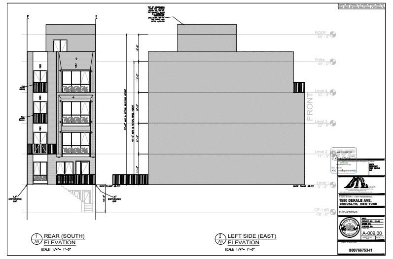
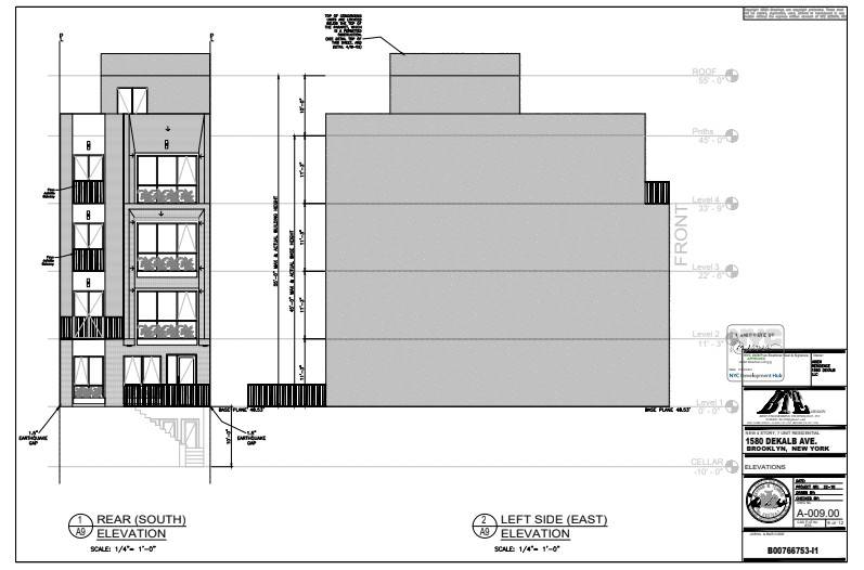
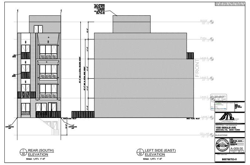
Introducing a prime development opportunity for a 25x100 lot, strategically located and boasting approved plans for a modern 4.5-story building containing 7 residential units. This project promises to deliver a total of 5,500 square feet of living space, designed to meet the demands of today's urban lifestyle. The foundation work has already commenced and is nearing completion, providing a head start for any potential developer or investor looking to capitalize on this exceptional project. With the groundwork laid, you can move forward with construction and bring your vision to life without delay. Making it a competitive offering in a desirable area. The attached plans (1 & 2) provide detailed insights into the layout and design of the building, showcasing the potential for comfortable living spaces that are sure to attract future residents. Don't miss out on this unique opportunity to develop a substantial residential project in a thriving community. Further attachments will provide additional details and insights into the plans and specifications. For more information and to discuss this opportunity further, please feel free to reach out.
Location
Similar Listings
Business Opportunity
$1,295,000
MLS# 11628692
ACTIVE
Business Opportunity
$1,450,000
MLS# 11401971
ACTIVE
Business Opportunity
$1,400,000
MLS# 11394434
ACTIVE
No similar listings found
Unfortunately, we don't have any similar listings at the moment. Please remove or change some of the selected filters.
Listing information provided courtesy of the My State MLS. IDX information is provided exclusively for consumers' personal, non-commercial use, and it may not be used for any purpose other than to identify prospective properties consumers may be interested in purchasing. The data is deemed reliable, but is not guaranteed accurate by the MLS. Updated: 2nd April, 2026 10:56 AM (UTC)
Listing Agent:
Listing Office:

















